Industrial-Grade Storm Shutters for Extreme Weather Protection

Global climate change has led to tropical storms becoming more frequent, often striking with greater intensity and ferocity. Industrial-grade storm shutters provide critical protection against the increasingly severe storms hitting Singapore.

In response, we developed the GLIDEROL® Storm Shutter, combining durability, safety, and wind resistance features.

Supported by storm shutter installation, storm shutter replacement, or storm shutter repair, our proprietary product ensures your facility remains secure in the face of extreme weather conditions.

Get a Quote

High Wind Pressure-Resistant Shutter Engineered for Maximum Safety

Strong tropical winds can damage facilities, disrupt supply chains, and compromise critical equipment, leading to costly downtime and safety hazards for staff.

Industrial-grade storm shutters with certified performance help mitigate these threats by providing reliable protection against extreme wind or rain.

However, the effectiveness of storm shutters may depend largely on their structural design. Traditional storm shutters often rely on wind locks that transfer pressure to door jambs, creating weak points under extreme force.

The GLIDEROL® Storm Shutter, however, is designed to distribute wind loads more efficiently, maintaining integrity even under sustained pressure. This patented approach represents a new benchmark for industrial storm shutters and protection globally.

Patented Wind-Resistant Design and Superior Engineering

Wind locks consist of a series of wind clips affixed to the edges of the shutter curtain. The clips are designed to latch onto the door guides when the shutter curtain is under wind pressure, thus preventing the shutter curtain from being dislodged from the guides.

However, since the guides are affixed to the door jambs for support, the resultant wind load is ultimately transferred to the door jambs.

Hence, when under wind pressure, the shutter curtain will respond by pulling against the guides, which will in turn pull against the fasteners holding it to the door jambs. As such, the ability of storm shutters to resist the wind force is actually dependent on the fasteners and the substrates of the door jambs.

So, if the fasteners or the door jambs fail to hold, the shutter will still succumb to the wind force despite having the wind locks.

The GLIDEROL® Storm Shutter relies on a horizontal lattice formation to resist the wind force. The shutter curtain is formed by double-walled cavity slats. Each slat has two horizontal steel rods in its cavity, running across the entire length of the slat. The ends of each rod are fitted with steel double eyelets.

A pair of steel cables is threaded through these eyelets, linking all the eyelets vertically on each side of the curtain. The top ends of these cables are secured to the door barrel, while the bottom ends terminate securely into compression sleeves that are housed within the bottom shoes.

These shoes are steel mouldings with recesses to engage the restraints that are located at the floor plates. Steel rods running through the bottom rail connect the pair of shoes to form the bottom chord of the lattice formation.

The shutter curtain is guided to travel up and down in a straight line to ensure that the bottom shoes will positively engage the restraints at the floor plate when the shutter reaches the fully-closed position. Once engaged, the entire lattice formation becomes ‘anchored’ to the floor.

Together with the cable links at both ends, the resultant effect of the above arrangement is a pliable lattice formation as illustrated above. It works like a flexible net that allows storm shutters to cushion, absorb, and deflect the wind forces.

The symmetric curtain design ensures it is equally effective against both positive and negative wind pressures. As such, the shutter can “last all day” if buffeted by the wind in a severe storm.

With none of the guide members attached to the door jambs, the GLIDEROL® Storm Shutter does not rely on the integrity of the door jambs to resist the wind load. This enables it to withstand very high wind forces regardless of the type and construction of the door jambs.

Tested and Certified for Extreme Wind Loads

The GLIDEROL® Storm Shutter is patented, tested, and certified for superior performance under extreme wind loads.

Our storm shutters are tested in accordance with ASTM E330/E330M standards, which specify the methodology for assessing the structural performance of exterior doors, windows, skylights, and curtain walls under uniform static air pressure.

Testing Highlights and Procedure

  • Tested to 3.3 kPa
  • Evaluated for wind speeds exceeding 200 km/h (125 mph), equivalent to Category 3 storms.
  • Applied incremental pressure until structural limits were reached.
  • Pressure was transferred through EPDM components to the full test specimen to verify performance.

Why Choose the GLIDEROL® Storm Shutter

High structural strength
Self-supporting design
Wind resistance
Operational safety
Weather protection
Guided curtain alignment

Technical Specifications and Material Composition

As one of the most reliable storm shutters for commercial and industrial applications, our patented GLIDEROL® Storm Shutter combines high-strength steel construction with advanced engineering.

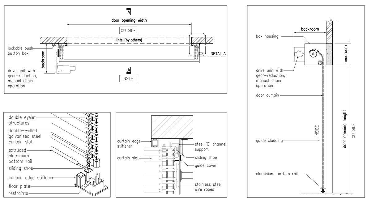
Drum Assembly

Barrel
The barrel assembly consists of an extremely rigid steel tube sheathed over a pair of drive shaft assemblies fitted to heavy-duty bearing sets and supported at both ends by steel head plates.
The drive shaft is a solid, polished steel round bar incorporating keyways to accept the drive sprocket.
Corresponding to the size of the shutter, the head plates are either 6mm or 8mm thick, with shafts of either 38mm or 50mm diameter

Self-Supporting Design
The shutter incorporates its own structural support in the form of a ‘goal post’ formed by steel “C” channels. The entire drum assembly shall rest on the vertical members, with the end plates attached to the lintel for stability.
The bulk of the shutter weight is thus transferred to the floor.

Door Curtain

Curtain Slats
The door curtain consists of 80mm x 20mm thick double-walled steel roll-formed interlocking cavity slats. The slats are reinforced with steel rods spanning the entire length of the slats.
Proprietary steel double-eyelet structures shall be attached to each end of the steel rods to receive the restraining cables.

Bottom Rail
The bottom slat is coupled to an aluminium profile base and fitted with a finned PVC weather seal.
Attached to each end of the bottom slat are steel sliding ‘shoes’ that are part of the restraining mechanism. These shoes are connected by steel rods spanning across the entire bottom slat.

Restraining Mechanism
A pair of stainless-steel cables is threaded through the eyes of the eyelet structures on each side of the door curtain.
One end of each cable is attached to the steel tube of the barrel assembly, while the other terminates in compression sleeves that are housed within the respective sliding shoes.
Vertical guide posts on each side of the door will ensure that the door travels up and down in a straight line.
Upon reaching the fully closed position, the sliding shoes will automatically engage the steel restraints on the floor plate, thus anchoring the bottom rail to the floor plate and preventing dislodgement under wind pressure.

Door Guides Cover
The removable guide covers are fabricated from steel sheets. They are bent and shaped to cover the edges of the door curtain and secured to the vertical shutter supports.
Note: The guide covers are non-structural and serve an aesthetic purpose only.

Door Operation

Motor Drive
The drive unit consists of a suitably-sized linear drive motor operator mounted parallel to and behind the door roll. It has an integrated gearbox and a chain-operated sheave wheel for manual operation in case of power failure.
The control box is lockable, housing a set of push buttons for Up’, ‘Down’, and ‘Stop’ operations. The door operation shall automatically stop at the desired upper and lower limits via adjustable limit switches.
For safety reasons, the ‘DOWN’ button shall require the operator to push and hold when closing the shutter. This is to ensure the closing operation is being supervised.
Upon sighting an obstruction, the operator will automatically release the push button by reflex.
This action will instantly stop the downward travel of the shutter and prevent accidents.
Power supply shall be either Single Phase 230V x 15amp or 3-Phase 415V x 20amp, depending on the size of the shutter.

Applications Across Industrial and Commercial Sectors

Our storm shutters are trusted across diverse sectors requiring high-wind protection.

  • Aviation hangars and airports
  • Power plants and energy facilities
  • Manufacturing and industrial buildings
  • Warehouses and logistics centers
  • Coastal and government infrastructures

Global Patents and Certification Standards

Our storm shutters are patented and recognised across multiple regions, showcasing innovation and trusted excellence in extreme weather protection.

  • WIPO Publication No. WO 2020-246941A1
  • Australia – No. 2019341063
  • Canada – No. 3,174,041
  • China – No. 2019800055611
  • Europe – No. 19 856 411.4
  • Hong Kong – No. 62021029240.0
  • Japan – No. 7108693
  • Korea – No. 10-2335678
  • Macau – No. J/006061
  • Malaysia – No. PI 2020002272
  • New Zealand – No. 762462
  • Singapore – No. 11202002050W
  • Taiwan – No. I71512
  • USA – No. US 11,187,030B2
  • Vietnam – No. 1-2020-06364

Speak With Our Team Today

Contact Us